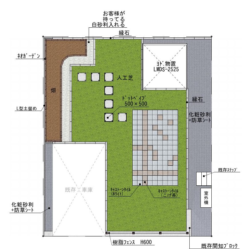
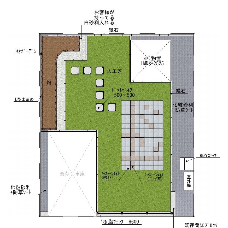
旭川市 W様邸 樹脂フェンス&平板
公開日:2021年03月26日
ご相談は無料!お気軽にお問い合わせください
0120-255-625
受付 9:00 - 17:00
グリーン造園のオリジナル商品のご紹介
グリーン造園では、デザイン性が高く、メンテナンスのしやすい当社オリジナル商品を開発・販売しています。
ご相談は無料!お気軽にお問い合わせください
0120-255-625
受付 9:00 - 17:00
グリーン造園では、デザイン性が高く、メンテナンスのしやすい当社オリジナル商品を開発・販売しています。